侵华日军细菌战揭秘
【简介:】二十世纪二十年代末,日本陷入空前的经济危机。为转移国内矛盾,日本实行对外侵略国策。鉴于日本资源缺乏的状况,日本将节省资源和能源的细菌战作为国家军事战略,研制细菌武器。1932年,日本在陆军军医学校创立了“细菌研究室”,开始进行细菌研究。1933年将细菌研究活动从日本国内转移到中国东北的哈尔滨,先后在背荫河和平房建立研究基地。从1936年起,开始在中国东北、华北、华中、华南等地陆续组建了细菌部队,形成了遍布中国各地和东南亚地区的细菌战网络体系。这种由日本自上而下、有组织的反人类、违背国际法的国家罪行,始终贯穿在日本长达14年的侵华过程之中。
【三】细菌研究和人体实验
为了开发研制细菌武器,七三一部队专门设置了细菌研究部、细菌实验部和细菌生产部,下设各种研究班。通过细菌研究、人体实验、动物实验、植物实验和野外实验来研制细菌武器及实验细菌武器效能。此外,为适应对苏联作战需要,还进行了冻伤实验、毒气实验和防疫给水研究。七三一部队拥有大批培殖和生产细菌的仪器设备,具备独立培育生产各类细菌的能力。
其他人体实验
七三一部队根据实战需要,还进行了一系列其他人体实验。1938年,七三一部队针对在高寒地区对苏作战的实际需要,设置了冻伤研究课题。1940年,在第一部设立了冻伤实验室,在严寒的冬季,用活人进行冻伤实验;在第二部设立了毒气实验室和毒气储藏室,经常在实验室和野外进行防毒和放毒实验;同时,七三一部队还进行过“烤人”与穿透实验等一般武器杀伤力测试的实验。
第一组 冻伤实验
冻伤实验也是七三一部队一项重要的实验内容,在1938年的时候,石井四郎主要针对在高纬度、寒冷地区作战的实际需要,设置了冻伤研究课题,成立了冻伤研究班,由石井四郎的同学吉村寿人主持这项课题研究。
在1940年的时候,为了在夏天也进行冻伤实验,在四方楼北侧建造了冻伤实验室。冻伤实验室内密封性良好,一年四季都可以进行冻伤实验。夏季把被实验者赶入冷冻室冷冻后,用不同温度的水进行解冻,以求得最佳解冻方法。冬季则让被实验者裸露身体或穿单衣到室外接受冷冻。
冻伤实验是在冬季的室外进行,将被实验者绑在木制架子上,手或想发生冻伤的部位裸露在外,时间一般持续8-10小时。为了加快冻伤的形成,还向裸露的部位浇上凉水,结冰之后将冰壳敲掉,反复进行。队员手中会拿着小木棒进行敲击,直到发出木棒击打木棒的声音就认为冻伤已经形成,随后把被实验者移至室内进行解冻实验。摩擦法或5℃-100℃水浸泡法等,经过很多对比试验得出结论,37℃温水浸泡后在涂抹药膏,冻伤缓解速度最快。但解冻方法不适宜的话,冻伤部位的皮肤组织就会溃烂掉,只剩下白骨。现在这个结论得到了医学的证实,但在当时这样一个简单的医学结论是七三一部队用无数被实验者的鲜血和生命换来的。
在冻伤实验室,利用不同的外界条件,使用不同素质的人体,相互对比,反复进行实验。他们把人带到零下30摄氏度以下的室外,光着手脚,一直冻到四肢僵硬,然后拉进解冻室,分别采用冷水、温水、开水进行解冻,直至骨肉分离。先是冬季进行实验,后来专门建了一座冻伤实验室,一年四季都能进行实验。之后,他们又用冻伤实验者做细菌、毒气实验,致死后,解剖焚尸。吉村班还将冻伤试验过程拍摄成影片,又专门配置了一名画家,用色彩描绘冻伤情况。日本战败回国后,他曾担任日本南极考察队长、京都府立医科大学生理学教授、校长等职,并且还将在七三一部队期间用活人做实验的研究成果进行发表,摇身一变成为了冻伤学领域的专家,但他的研究背后是无数被实验者的生命。
有一名画师,在七三一部队工作,他描绘下来的正是这些“马路大”变了形、坏死了的四肢。有一张画上画着“马路大”的双手,从指关节到指尖的肉巳经完全烂掉。另一张画上描绘的是“马路大”的两只脚,巳没有踝骨以下部分。还有一张画上,从脚脖子到大腿都露出了白骨。

七三一部队冻伤实验室旧址

七三一部队吉村班班长吉村寿人

七三一部队冻伤实验室旧址

七三一部队冻伤实验室旧址

七三一部队冻伤实验场景(侵华日军第七三一部队罪证陈列馆场景复原)

吉村寿人在1941年10月26日写的关于冻伤实验的报告

吉村寿人在1941年10月26日写的关于冻伤实验的报告中战场上冻伤发生情况表

吉村寿人在1941年10月26日写的关于冻伤实验的报告中冻伤程度及经过情况表

吉村寿人在1941年10月26日写的关于冻伤实验的报告中冻伤部位比率情况表

吉村寿人在1941年10月26日写的关于冻伤实验的报告中手脚冻伤的区别情况表

吉村寿人在1941年10月26日写的关于冻伤实验的报告中冻伤实验列表,说明手部在不同时间的病变情况


七三一部队队员菌苗班雇员山内丰纪关于冻伤实验的证言

古都关于冻伤实验的证言


西俊英关于冻伤实验的证言

秦正氏关于冻伤实验的证言
第二组 毒气实验
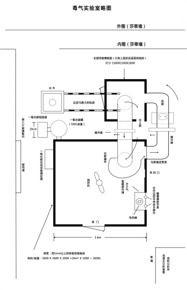
七三一部队建有毒气发生室和毒气储藏室。毒气实验室位于四方楼东南部,为长方形砖混二层楼。毒气研究班实验人员把“马路大”推进密封的玻璃柜内,分别对其进行一度、二度、三度的毒气实验,直至其被毒死。此外,还在野外进行防毒和施毒的实验。如果被实验者反抗,就会用毒气全部毒死。
据七三一部队运输班队员铃木进回忆说,他曾见过一场毒气实验,从香坊保育院运过来一对苏联母女,是诺门罕战场上的俘虏。小女孩四、五岁的样子,他见证了这对母女被毒气杀死的全过程。这件事给他留下了很深刻的印象,每天睡觉时这对母女就像幽灵一样出现在他的梦中。

七三一部队毒气实验室旧址

七三一部队毒气地下储藏室旧址

毒气实验室略图

七三一部队队员进行毒气实验前的准备工作

七三一部队队员在野外毒气实验场上

七三一部队原队员池田苗夫撰写的毒气人体验报告书《因黄弹射击引起的皮肤伤害及一般临床的观察》,该报告书记载了1940年9月7~10日,七三一部队使用20名被实验者进行毒气实验的详细情况
上田弥太郎关于通过毒气实验毒杀“马路大”的证言
上田弥太郎供认,731部队在警备和瓦斯演习中,大量地屠杀“马路大”。他记得两次演习就杀害了200来人,其中是否有苏联人和蒙古人他不知道。上田弥太郎说,1942年2月,由于“马路大”的反抗,打乱了伊藤技师的细菌注射实验计划。伊藤技师气急败坏,施放毒气将7号牢房的人全部毒死。他毫无人性地说:“正好要搞一次毒气实验,那就让他们好好享受享受吧!”中央档案馆档案:上田弥太郎供词。同年4月,上田弥太郎参加干燥细菌生产时,一天,他去第一班取细菌,路过特设监狱时,“闻到浓厚的瓦斯气,使他睁不开眼。回来后,他问及此事,小林技手说,这是进行警备演习”。
中央档案馆等:《细菌战与毒气战》,华书局,1989年
Copyright ©2014-2023 krzzjn.com All Rights Reserved
湘ICP备18022032号 湘公网安备43010402000821号
中央网信办违法和不良信息举报中心 长沙市互联网违法和不良信息举报中心
不良信息举报电话:0731-85531328 19198230121(微信同号)
纠错电话:18182129125 15116420702
QQ:2652168198